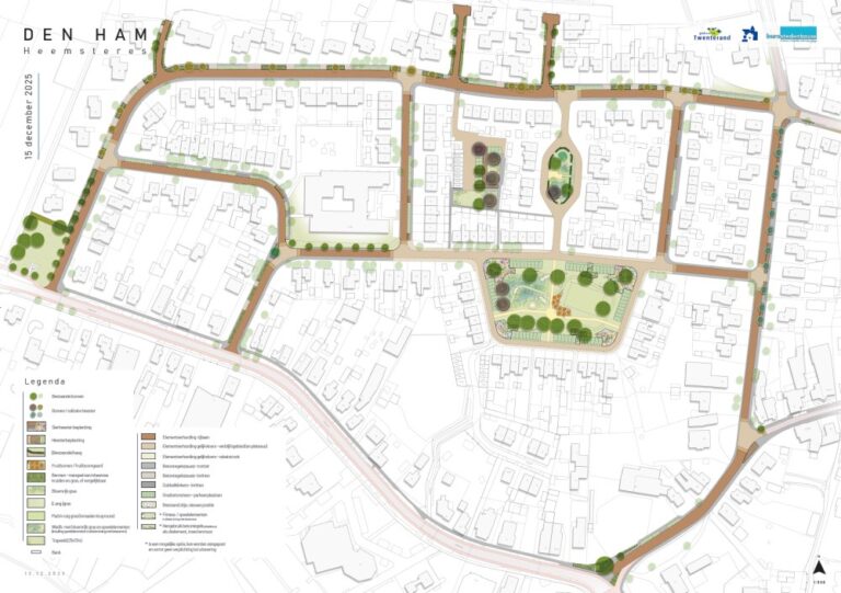
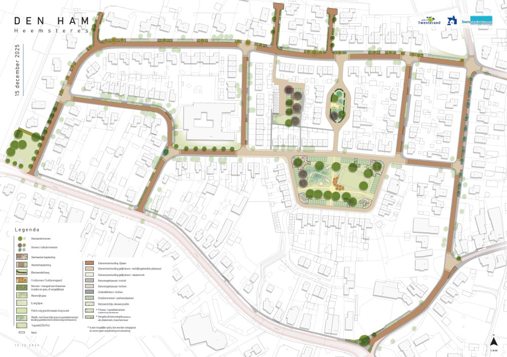
Het voorlopig ontwerp voor de herinrichting van de Heemsteres is klaar. Dit ontwerp is gemaakt met de waardevolle inbreng van betrokken wijkbewoners. Met dank aan de klankbordgroep zijn er ook voor de grasvelden in de wijk ontwerpen gemaakt.
De volgende stap: de techniek
Het voorlopig ontwerp is het uitgangspunt voor de volgende fase: het civieltechnische ontwerp. Dat betekent dat precies berekend wordt hoe het plan technisch uitgevoerd kan worden. Denk hierbij aan:
De precieze hoogtes van de weg en de afvoer van regenwater.
De exacte plek van kabels, leidingen en straatverlichting.
Welke materialen (zoals het soort stenen of tegels) het meest geschikt zijn.
Zodra dit technische ontwerp klaar is, nodigen we de wijk uit voor een presentatie. Er wordt dan ook meer verteld over de definitieve uitvoering en de planning.
Aan het elektriciteits- en het waternet moeten werkzaamheden uitgevoerd worden. Deze worden voorbereid door de NUTS-bedrijven. Hun planning is in deze fase bepalend voor het vervolg.
Vragen?
Vragen over een ontwerp? Neem dan contact op met projectleider Eddie Wilts via e.wilts@twenterand.nl.



